Дома под ключ в Белгороде
Отзывы из Яндекс Карт
4.9
106 отзывов
Дополнительные услуги 88%
2 154 оценок
Комплектации 89%
1 535 оценок
Планировки 90%
2 484 оценок
Проекты 93%
2 231 оценок
С
Аурика04/04/2026 г.
Устала от городской суеты, купили участок и дом 7х10 с террасой для круглогодичного проживания. За отделку внутри спасибо — стены ровные, углы прямые. Не понравилось что крышу покрыли не тем цветом как хотели, но переделывать уже не стали.
С
Миша Лыков01/20/2026 г.
Менеджер в БрусДомах попался грамотный, объяснил разницу между под ключ и под усадку. Взял дом 8х14 под усадку, чтобы потом самому заняться отделкой. Через год стены повело симметрично, геометрия внутри никуда не ушла, доволен выбором.
С
Саша Мешков03/25/2025 г.
Строил баню под ключ и был приятно удивлен скоростью и слаженностью работы, менеджер Александр грамотно все объяснил и помог подобрать оптимальный проект, а строительная бригада выполнила все в строгом соответствии со сметой и без малейших задержек, результат превзошел ожидания.
Отзывы из Google Карт
4.8
64 отзывов
Дополнительные услуги 88%
2 154 оценок
Комплектации 89%
1 535 оценок
Планировки 90%
2 484 оценок
Проекты 93%
2 231 оценок
С
Лидия03/28/2026 г.
Построили нам дом 8х13 с навесом для машины и верандой. В процессе выяснилось, что на веранде не предусмотрели отопление — теперь зимой там холодно. Моя вина, что не уточнила.
С
Жанна Галкина04/04/2025 г.
Самый искренний комплимент прорабу бригады, который лично контролировал каждый этап и всегда был на связи, оперативно решая любые возникавшие вопросы и внося ценные предложения.
Отзывы из 2гис
4.9
37 отзывов
Дополнительные услуги 88%
2 154 оценок
Комплектации 89%
1 535 оценок
Планировки 90%
2 484 оценок
Проекты 93%
2 231 оценок
С
Ксюша Корнева05/06/2026 г.
Когда ставили сруб, я боялась, что будет холодно. Дополнительно утеплили пол и потолок, хотя по проекту было достаточно. Компания сделала это по нашей просьбе за разумные деньги.
С
Вадик Щ.02/05/2026 г.
Решил сделать дом 140 м2 с эркером, двумя входами и большим санузлом. Проект разрабатывали вместе, учли почти всё. Не учли только, что лестница на второй этаж получилась крутовата — для пожилых сложновато.
С
Эд07/14/2025 г.
Процесс усадки прошёл абсолютно предсказуемо и без сюрпризов, что лишний раз доказывает грамотный подход компании к подбору и подготовке древесины для строительства.


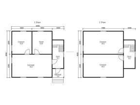
Проект №41 Дом из бруса 8х9

брус камерной сушки
Создайте свой план для этого проекта
и отправьте его нам на расчет в один клик.
Под ключ (с отделкой) 8х9 Профилированный 140х140 мм 3150600 Заказать
Под ключ (с отделкой) 8х9 Профилированный 190х140 мм 3780600 Заказать
Под усадку (без отделки) 8х9 Cруб дома 140х140 мм 2280600 Заказать
Под усадку (без отделки) 8х9 Cруб дома 190х140 мм 2740600 Заказать


Комплектация

Площадь застройки: м2
Длина: 8 м
Ширина: 9 м
Общая площадь: 117.96 м2
Под ключ (с отделкой) Под усадку (без отделки)
Фундамент Свайно-винтовой или ж/б сваи (рассчитываются отдельно).
Гидроизоляция фундамента Рубероид в два слоя.
Основание (обвязка) Из обрезного бруса (100х150 мм. 150х150 мм. 150х200 мм. согласно выбранному сечению бруса). Обработка антисептиком.
Количество рядов основания 2 2
Цокольное перекрытие Обрезной брус камерной сушки 100х150/50х200 мм. с шагом 600 мм. Обработка антисептиком. Обрезной брус естественной влажности 100х150/50х200 мм. с шагом 600 мм. Обработка антисептиком.
Пол черновой Обрезная доска камерной сушки 20х100 мм. Обрезная доска естественной влажности 20х100 мм.
Внешние стены Профилированный брус камерной сушки, сечением 90х140/140х140/190х140 мм. по выбранной комплектации. Два вида профиля: 
1. С двух сторон, прямой со снятой фаской. 2. Снаружи под «блок- хаус», внутри прямой.
Высота сруба: Сруб одноэтажный- 18 венцов
Сруб с мансардой- 18 венцов
Сруб в 1,5 этажа- 18 венцов, далее каркас с внешней отделкой имитацией бруса.
Сруб в 2 этажа- 37 венцов
Профилированный брус естественной влажности, сечением 90х140/140х140/190х140 мм. по выбранной комплектации. Два вида профиля: 
1. С двух сторон, прямой со снятой фаской. 2. Снаружи под «блок- хаус», внутри прямой.
Высота сруба: Сруб одноэтажный- 18 венцов
Сруб с мансардой- 18 венцов
Сруб в 1,5 этажа- 18 венцов, далее каркас с внешней отделкой имитацией бруса.
Сруб в 2 этажа- 37 венцов
Межвенцовый утеплитель Джут (льноджутовое полотно). Джут (льноджутовое полотно).
Перегородки 1-го этажа Профилированный брус камерной сушки, сечением 90х140 мм. Профилированный брус естественной влажности, сечением 90х140 мм.
Перегородки 2-го этажа Каркасные: доска камерной сушки 40х100 мм, обшитые евровагонкой хвойных пород, камерной сушки, толщиной 12,5 мм. сорт «АВ» (дома с мансардой и в 1,5 этажа). Брусовые: профилированный брус камерной сушки, сечением 90х140 мм. (дома двухэтажные). Каркасные: доска естественной влажности 40х100 мм. (дома с мансардой и в 1,5 этажа). Брусовые: профилированный брус естественной влажности, сечением 90х140 мм. (дома двухэтажные).
Сборка сруба Берёзовый нагель. Берёзовый нагель.
Соединение углов сруба «Тёплый угол» (коренной шип). «Тёплый угол» (коренной шип).
Высота от пола до потолка Сруб одноэтажный: 2,4 м. (18 венцов) Сруб с мансардой: 1-ый этаж- 2,4 м. (18 венцов)
2-ой этаж (мансарда)- 2,3 м.
Сруб в полтора и два этажа:
1-ый этаж 2,4 м ±4 см. (18 венцов)
2-ой этаж 2,4 м ±4 см. каркасные аттиковые стены (боковые) высотой 1,5 м. в полутораэтажном доме
2,4 м ±4 см (поднят брусом на 18 венцов) в двухэтажном доме.
Сруб одноэтажный: 2,5 м. (18 венцов) Сруб с мансардой: 1-ый этаж- 2,5 м. (18 венцов)
2-ой этаж (мансарда)- 2,4 м.
Сруб в полтора и два этажа:
1-ый этаж 2,5 м ±4 см. (18 венцов)
2-ой этаж 2,5 м ±4 см. каркасные аттиковые стены (боковые) высотой 1,5 м. в полутораэтажном доме
2,5 м ±4 см (поднят брусом на 18 венцов) в двухэтажном доме.
Утепление (пол, потолок, мансарда) Минеральная вата Knauf 150 мм. Отсутствует.
Пароизоляция (пол, потолок, мансарда) Ондутис R70. Отсутствует.
Пол чистовой Шпунтованная доска камерной сушки толщиной 36 мм. сорт АВ. по рейке 20х40 мм. либо шпунтованная ДСП 16 мм. по разряженной обрешётке из обрезной доски камерной сушки 20х100 мм. Отсутствует.
Потолки Евровагонка камерной сушки толщиной 12,5 мм. сорт АВ. Отсутствует.
Окна Деревянные, двойного остекления. Отсутствуют.
Двери Входная- металлическая, утеплённая (Россия). Межкомнатные- филёнчатые. Отсутствуют.
Наличники на окна и двери Наличник деревянный, строганый, камерной сушки 70-90 мм. Отсутствует.
Шиповка оконных и дверных проёмов (ройки) Да. Отсутствует.
Лестница (при наличии второго этажа) Деревянная, одно или двухмаршевая. Перила- заводские резные, балясины- заводские точеные, устанавливаются стартовые точёные столбы. Ступени 40х200 мм. Тетива лестницы- 90х140 мм. Отсутствует.
Крыша Двускатная, ломаная или вальмовая в соответствии с проектом. Двускатная, ломаная или вальмовая в соответствии с проектом.
Стропильная система Выполнена из обрезной доски камерной сушки 40х150 мм. Шаг установки стропильных ног 600 мм. Выполнена из обрезной доски естественной влажности 40х150 мм. Шаг установки стропильных ног 600 мм.
Обрешётка Выполняется из обрезной доски камерной сушки толщиной 20-22 мм. Шаг крепления обрешетки 300 мм. Контробрешётка выполняется из бруска камерной сушки 40х50 мм. Крепится по стропильным ногам (вентиляционный зазор). Выполняется из обрезной доски естественной влажности толщиной 20-22 мм. Шаг крепления обрешетки 300 мм. Контробрешётка выполняется из бруска естественной влажности 40х50 мм. Крепится по стропильным ногам (вентиляционный зазор).
Подкровельная мембрана Ондутис А100 Ондутис А100
Кровельное покрытие (на выбор) Ондулин, Черепица Ондулин. Ондулин, Черепица Ондулин.
Фронтоны (при наличии) Каркас из обрезной доски камерной сушки 40х150 мм. Обшиваются вагонкой камерной сушки толщиной 16 мм. сорт АВ по контррейке 20х40 мм. (вентиляционный зазор). Влаго-ветрозащита Ондутис А100. Монтаж вентиляционных решёток. Каркас из обрезной доски естественной влажности 40х150 мм. Обшиваются вагонкой камерной сушки толщиной 16 мм. сорт АВ по контррейке 20х40 мм. (вентиляционный зазор). Влаго-ветрозащита Ондутис А100. Монтаж вентиляционных решёток.
Свесы крыши Ширина 400 мм. Подшиваются вагонкой камерной сушки, сорт АВ. Ширина 400 мм. Подшиваются вагонкой камерной сушки, сорт АВ.
Терраса/балкон (при наличии) Устанавливаются опорные столбы из строганного бруса камерной сушки 140х140 мм. с компенсационными болтами под усадку. Устанавливаются опорные столбы из строганного бруса естественной влажности 140х140 мм. с компенсационными болтами под усадку.
Отделка потолка террасы/балкона Евровагонка камерной сушки толщиной 12,5 мм. сорт АВ. Отсутствует.
Пол террасы/балкона Шпунтованная доска камерной сушки толщиной 36 мм. сорт АВ. Отсутствует.
Ограждение террасы/балкона Перила- строганая доска. Балясины- точеные, фигурные. Либо ограждение в скандинавском стиле. Устанавливаются ступени у входа. Отсутствует.
Допуск на геометрические параметры сруба Составляет +/- 50 мм по длине с каждой стороны. Составляет +/- 50 мм по длине с каждой стороны.
Допускается стыковка бруса, вагонки и половой доски По всему периметру стен дома (если ширина и длина дома более 6,0 метров). Вагонки и доски пола в каждой отдельной комнате. По всему периметру стен дома (если ширина и длина дома более 6,0 метров).
Допуски по брусу, доске +/- 5 мм. +/- 5 мм.
В стоимость включена Доставка комплекта материала в радиусе 500 км. от г. Пестова Новгородской области и сборка дома на вашем участке. Доставка комплекта материала в радиусе 500 км. от г. Пестова Новгородской области и сборка дома на вашем участке.
Гарантия 5 лет. 2 года.
Бытовка строительная 2,0х3,0 м. каркасно-щитовая. Стоимость 23000 руб. Остаётся на участке Заказчика. Стоимость 23000 руб. Остаётся на участке Заказчика.
Туалет 1,0х1,0 м. каркасно-щитовой. Стоимость 12000 руб. Остаётся на участке Заказчика. Стоимость 12000 руб. Остаётся на участке Заказчика.
Генератор Стоимость аренды на весь срок строительства 10000 руб. ГСМ за счёт Заказчика. Стоимость аренды на весь срок строительства 10000 руб. ГСМ за счёт Заказчика.

Строительство деревянных домов может выполняться в двух видах: под усадку, когда сруб будет отстаиваться на протяжении некоторого времени и под ключ.

В период холодов лучше всего строить из зимнего леса, летом - из сухого бруса.

Наиболее подходящими для сада или дачи являются экономичные дома на винтовых сваях, на нашем сайте можно найти одноэтажные и полуторатажные дома.

Если дом будет строиться для ПМЖ (постоянного проживания), советуем теплые и надежные одноэтажные и двухэтажные дома на плитном и ленточном фундаменте.

Имеется несколько размеров профилированного бруса: 190х140 мм и 140х140 мм. Сооружения из вертикального бруса строятся из бруса 140х190 мм.

Дополнительные услуги


Проект дома из бруса с – двухэтажный коттедж общей площадью 117.96 кв.м., органично сочетающий в себе русский избяной и европейский стили. Четкие линии, сдержанные архитектурные решения и основной строительный материал – натуральная древесина – придают дому респектабельный вид.

Проект 41 – оптимальный вариант функционального и комфортного дома для дачи.

В планировке четко обозначены зоны: помещения общего пользования, светлые комнаты сна и отдыха, кухня. двускатная крыша придает сооружению законченный вид. В доме из профилированного бруса выбранного сечения (90х140 мм или 140х140 мм) сохраняется тепло, создаются все условия для комфортного проживания даже в холодные сезоны.

Компания предлагает проекты домов под усадку или под ключ и их возведение в Белгороде. Дом из бруса прост в монтаже, при этом его отличают надежность, безупречная эстетика и доступность.


Популярные проекты

хит продаж брус камерной сушки
Тип: с маленькой террасой
Общая площадь: 52.22
1355100
от 1290600
хит продаж брус камерной сушки
Тип:
Общая площадь: 107.62
1502100
от 1430600
хит продаж брус камерной сушки
Тип: с маленькой террасой
Общая площадь: 65.92
1460100
от 1390600

Заказать или задать вопрос



Заказать или задать вопрос

Заказать звонок