Дома под ключ в Белгороде
Отзывы из Яндекс Карт
4.9
110 отзывов
Дополнительные услуги 88%
2 154 оценок
Комплектации 89%
1 535 оценок
Планировки 90%
2 484 оценок
Проекты 93%
2 231 оценок
С
Олимпия02/17/2026 г.
Построили мне дом 7,5х9 с цокольным этажом и вторым светом — это оказалось сложнее, чем я думала. Компания наняла отдельную бригаду на цоколь, те затянули сроки. Зато сам сруб поставили за две недели, очень аккуратно.
С
Гелла Козина05/28/2025 г.
От всей души благодарю компанию за мой уютный уголок — небольшую, но такую душевную баньку, которую мне построили всего за несколько недель. Очень понравилось, что со мной всегда были на связи и терпеливо отвечали на все мои вопросы.
Отзывы из Google Карт
4.8
66 отзывов
Дополнительные услуги 88%
2 154 оценок
Комплектации 89%
1 535 оценок
Планировки 90%
2 484 оценок
Проекты 93%
2 231 оценок
С
Вова Ф.08/29/2025 г.
Я впечатлен скоростью и слаженностью работы строительной бригады — моя баня из профилированного бруса была возведена всего за несколько недель, при этом качество сборки на высоте, и я уже успел оценить ее по достоинству в кругу друзей.
Отзывы из 2гис
4.9
37 отзывов
Дополнительные услуги 88%
2 154 оценок
Комплектации 89%
1 535 оценок
Планировки 90%
2 484 оценок
Проекты 93%
2 231 оценок
С
Доминика04/18/2026 г.
Смету расписали подробно, до последнего гвоздя. Правда, потом мы сами решили добавить еще одну розетку в прихожей, и это было уже за отдельную плату. Но сумма была символическая.
С
Святослав Молчанов03/14/2026 г.
Мужики толковые, построили баню 5х5 с сауной и беседкой из бруса естественной влажности. После усадки пришлось подтягивать кронштейны на крыше — приехали, сделали. Парник держит отлично, жалко, что дверь в предбанник перекосило — надо стругать.
С
Олег01/17/2026 г.
Баня 5х6 с сауной и маленькой беседкой. Через месяц после сдачи треснул угол в предбаннике — брус повело. По гарантии заменили две венцы, правда, пришлось полдня ждать, пока привезут материал. Сейчас норм.
С
Анфиса Гладкова01/23/2025 г.
Мне посоветовали вашу компанию близкие друзья, и теперь я с удовольствием передаю рекомендацию дальше. Всё от и до было сделано качественно: и проект индивидуальный разработали с учетом моих пожеланий, и строили строго по графику, и консультировали на всех этапах. В итоге я стала обладательницей роскошной бани из бруса!


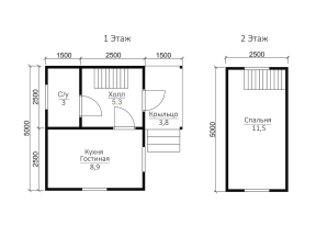
Проект №2 Дом с мансардой 5х4

каркас из строганой доски
Создайте свой план для этого проекта
и отправьте его нам на расчет в один клик.
Каркасный дом (150 мм) 5х4 Толщина утепления 150 мм 1190600 Заказать
Каркасный дом (200 мм) 5х4 Толщина утепления 200 мм 1280600 Заказать

Пользуйтесь нашим планировщиком, чтобы получить уникальную планировку.

С использованием планировщика вы можете сделать максимально подходящие планы, схемы, эскизы, чертежи дома с мансардой, эркером, с требуемым количеством комнат. В итоге получится персональный проект с планировкой, который стопроцентно отвечает вашим запросам.

При заказе постройки дома вы имеете возможность выбрать тип кровли. Ваша крыша может быть двускатная, четырехскатная и вальмовая. Двухскатную крышу считают наиболее востребованной у малометражных построек.

Самые популярные на текущий момент размеры: мини - до 50 кв. М (в основном, 1-этажные); компактные - от 70 до 100 кв. М (обычно двухэтажные); большие - начиная от 150 м2 и больше.

Можем предложить дуплексы - каркасные постройки с 2-мя входами на две семьи. Дома предполагаются для двух хозяев, они поделены на две части, для каждой половины - свой вход.


Наши работы

Перейти в галерею


Комплектация

Площадь застройки: 20 м2
Длина: 5 м
Ширина: 4 м
Общая площадь: 29.79 м2
Исполнение Под ключ (с отделкой)
Фундамент Свайно-винтовой или ж/б сваи (рассчитываются отдельно).
Гидроизоляция фундамента Рубероид в два слоя.
Основание (обвязка) Из обрезного бруса 150х150 мм. 150х200 мм. согласно выбранной толщине утепления. Торцевая доска строганая 45х145/45х195+/-5 мм. согласно выбранной толщине утепления. Обработка антисептиком.
Цокольное перекрытие Строганая доска камерной сушки 45х145/45х195+/-5 мм. с шагом 590 мм. Обработка антисептиком.
Пол черновой Обрезная доска камерной сушки 20х100 мм.
Влаго-ветрозащита чернового пола Мембрана Ондутис А100.
Внешние стены Стойки каркаса из строганой доски камерной сушки 45х145/45х195+/-5 мм. с шагом 590 мм. Верхняя двойная и нижняя обвязки из строганой доски камерной сушки 45х145/45х195+/-5 мм. Разгрузочный ригель из строганой доски 45х145+/-5 мм. Укосины из строганой доски 20х95 мм.
Перегородки Стойки каркаса из строганой доски камерной сушки 45х95+/-5 мм. с шагом 590 мм. Верхняя двойная и нижняя обвязки из строганой доски 45х95+/-5 мм. Разгрузочный ригель из строганой доски камерной сушки 45х145+/-5 мм. Укосины из строганой доски камерной сушки 20х95 мм.
Сборка каркаса На гвозди.
Высота от пола до потолка Дом одноэтажный: 2,5 м. Дом с мансардой: 1-ый этаж- 2,5 м.
2-ой этаж (мансарда)- 2,3 м.
Дом в полтора и два этажа:
1-ый этаж 2,5 м.
2-ой этаж 2,4 м. в полутораэтажном доме
2,5 м. в двухэтажном доме.
Внешняя отделка стен Имитация бруса камерной сушки, сорт АВ, толщиной 17 мм. Монтаж через строганый брусок камерной сушки 45х45+/-5 мм. (вентилируемый фасад). Влаго-ветрозащитная мембрана- Ондутис А100.
Внутренняя отделка стен, перегородок Евровагонка камерной сушки, сорт АВ, толщиной 12,5 мм. по строганой рейке 20х40+/-5 мм. либо ГКЛ 12,5 мм.
Отделка потолка Евровагонка камерной сушки, сорт АВ толщиной, 12,5 мм. по строганой рейке 20х40+/-5 мм. либо ГКЛ 12,5 мм.
Пол чистовой Шпунтованная доска камерной сушки толщиной 35-36 мм. сорт АВ. по строганой рейке 20х40+/-5 мм. либо шпунтованная ДСП 16 мм. по разряженной обрешётке из строганой доски камерной сушки 20х95+/-5 мм.
Утепление (пол, потолок) Минеральная вата Knauf 150/200 мм. согласно выбранной толщине утепления.
Утепление стен Плитный утеплитель Rockwool, толщиной 150/200 мм. согласно выбранной толщине утепления.
Звукоизоляция перегородок Плитный утеплитель Rockwool, толщиной 100 мм.
Пароизоляция (стены, перегородки, пол, потолок) Плёнка Ондутис R70. Дополнительная герметизация нахлёстов/примыканий пароизоляционной плёнки клейкой лентой Delta.
Окна Двухкамерные стеклопакеты ПВХ белого цвета, профиль 60 мм. В комплекте: отливы, подоконники, москитные сетки.
Двери Входная- металлическая, утеплённая (Россия). Межкомнатные- филёнчатые.
Наличники на окна и двери Наличник деревянный, строганый, камерной сушки 70-90 мм. с двух сторон.
Лестница (при наличии второго этажа) Деревянная, одно или двухмаршевая. Перила- заводские резные, балясины- заводские точеные, устанавливаются стартовые точёные столбы. Ступени 40х200 мм. Тетива лестницы- 90х140 мм.
Крыша Двускатная, ломаная или вальмовая в соответствии с проектом.
Стропильная система Выполнена из строганой доски камерной сушки 45х145/45х195+/-5 мм. Шаг установки стропил 590 мм.
Обрешётка Выполняется из строганой доски камерной сушки толщиной 20х95+/-5 мм. Шаг крепления обрешетки 350 мм. Контробрешётка выполняется из строганого бруска камерной сушки 45х45+/-5 мм. Крепится по стропилам (вентиляционный зазор).
Подкровельная мембрана Ондутис А100
Кровельное покрытие (на выбор) Металлочерепица 0,45 мм. Цвет на выбор.
Фронтоны (при наличии) Каркас из строганой доски камерной сушки 45х145/45х195+/-5 мм. Обшиваются имитацией бруса камерной сушки, сорт АВ, толщиной 17 мм. Монтаж через строганый брусок камерной сушки 45х45+/-5 мм. (вентилируемый фасад). Влаго-ветрозащитная мембрана- Ондутис А100. Монтаж вентиляционных решёток.
Свесы крыши Ширина 400 мм. Подшиваются вагонкой камерной сушки, сорт АВ.
Терраса/балкон (при наличии) Устанавливаются опорные столбы из строганного бруса камерной сушки 140х140 мм.
Отделка потолка террасы/балкона Евровагонка камерной сушки толщиной 12,5 мм. сорт АВ.
Пол террасы/балкона Шпунтованная доска камерной сушки толщиной 35-36 мм. сорт АВ.
Ограждение террасы/балкона Перила- строганая доска. Балясины- точеные, фигурные. Либо ограждение в скандинавском стиле. Устанавливаются ступени у входа.
Допуск на геометрические параметры Составляет +/- 50 мм по длине с каждой стороны.
Допускается стыковка имитации бруса, вагонки и половой доски По всему периметру стен дома (если ширина и длина дома более 6,0 метров). Вагонки и доски пола в каждой отдельной комнате.
Допуски по имитации бруса, вагонке, доске +/- 5 мм.
В стоимость включена Доставка комплекта материала в радиусе 500 км. от г. Пестова Новгородской области и сборка дома на вашем участке.
Гарантия 5 лет.
Бытовка строительная 2,0х3,0 м. каркасно-щитовая. Стоимость 23000 руб. Остаётся на участке Заказчика.
Туалет 1,0х1,0 м. каркасно-щитовой. Стоимость 12000 руб. Остаётся на участке Заказчика.
Генератор Стоимость аренды на весь срок строительства 15000 руб. ГСМ за счёт Заказчика.

Сооружение дома осуществляется в нескольких видах: под усадку, когда дом будет отстаиваться в течение определенного времени и под ключ.

В мороз лучше строить дома в морозную погоду, чтобы каркас не успел промокнуть, летом - не под дождем.

Оптимальными для сада или дачи стали дома на винтовых сваях, на нашем сайте вы увидите одноэтажные и полуторатажные варианты.

Если вы собираетесь жить постоянно, можем предложить надежные и теплые двухэтажные и одноэтажные коттеджи и дома на плитных и ленточных фундаментах.

Существует два варианта толщины утепления: 150 мм и 200 мм. Каркасные дома с толщиной утеплителя 150 мм получаются дешевле, но менее энергоэффективными.

Дополнительные услуги


Этот полутораэтажный дом с , выполненный по каркасной технологии, станет отличным выбором для проживания и отдыха за городом. Он отличается продуманной планировкой с четким разделением зоны.

Характеристики

Общая площадь застройки дома составляет 29.79 кв.м., размер – 5х4 м.. Высота потолков первого этажа составляет 2,45 м. В жилых помещениях установлены двойные зимние окна. Двери филенчатые, их размер составляет 0,8x 2.0 м. Крыша двускатная с покрытием на основе ондулина, заказчик может выбирать его цвет: зеленый, красный или коричневый.

Заказать строительство дома в Белгороде

Каркасные дома – это легкие и быстровозводимые сооружения, которые не уступают аналогам в надежности и комфортности проживания. Закажите каркасный дом по проекту 2 в компании «Дача из бруса». Оказываем все виды дополнительных услуг, возведение под ключ, а также разрабатываем индивидуальные проекты.


Популярные проекты


Дома из бруса 6х5 Каркасные дома с террасой Каркасные дома более 100 кв.м.
хит продаж
Тип: с большой террасой
Общая площадь: 2
1817100
от 1730600
хит продаж
Тип:
Общая площадь: 2
2772600
от 2640600
хит продаж
Тип:
Общая площадь: 2
2562600
от 2440600
Дома из бруса

Заказать или задать вопрос



Заказать или задать вопрос

Заказать звонок