Дома под ключ в Белгороде
Отзывы из Яндекс Карт
4.9
84 отзывов
Дополнительные услуги 88%
2 154 оценок
Комплектации 89%
1 535 оценок
Планировки 90%
2 484 оценок
Проекты 93%
2 231 оценок
С
Костя Карпов06/23/2025 г.
Все продумано до мелочей; в проекте бани было учтено место для хранения дров и веников, а также сделана удобная скамья в предбаннике, что делает использование еще комфортнее.
Отзывы из Google Карт
4.8
51 отзывов
Дополнительные услуги 88%
2 154 оценок
Комплектации 89%
1 535 оценок
Планировки 90%
2 484 оценок
Проекты 93%
2 231 оценок
С
Мирослава Бочарова04/28/2026 г.
Мы живём в доме уже год, и он стал только красивее. Дерево потемнело, приобрело благородный оттенок. Ничего не покоробило, не перекосило, фундамент стоит намертво.
С
Марина Ермилова01/27/2026 г.
В принципе, ничего страшного не случилось. Каркасный дом 6х10 с балконом и навесом построили быстро, за 2 месяца. Только ветрозащитную пленку порвали в одном месте — заклеили скотчем, я потом сама продублировала. Но в целом довольна.
С
Емельян02/05/2025 г.
Хотел выразить огромную благодарность всей команде за их труд. Строительство — это всегда стресс, но в данном случае он был минимальным благодаря слаженной работе менеджеров и строителей. Бригада оставила после себя идеальную чистоту, а сам брусовый дом выглядит именно так, как я его и представлял, даже лучше.
Отзывы из 2гис
4.9
37 отзывов
Дополнительные услуги 88%
2 154 оценок
Комплектации 89%
1 535 оценок
Планировки 90%
2 484 оценок
Проекты 93%
2 231 оценок
С
Жасмин Щ.03/15/2026 г.
Муж долго уговаривал на дом с бассейном, я сопротивлялась. В БрусДома нашли компромисс — проект 12х12 с небольшим мини-бассейном в пристроенной зоне. Построили за полгода, но под конец стройки у них сменилась бригада, и последние недели были нервными. В ц
С
Аксинья Щ.02/19/2026 г.
Честно говоря, переживала насчет зимнего дома из бруса. Взяли проект 8х12 с котельной и вторым светом. Тепло сохраняется отлично, но вот окна на второй свет запотевают по утрам — наверное, вентиляцию продумать надо было.
С
Кир04/14/2025 г.
Качество сборки дома превзошло все мои ожидания, ведь стены стоят ровно, углы сведены идеально, а усадка прошла равномерно и без малейших перекосов, что говорит о высоком профессионализме плотников.


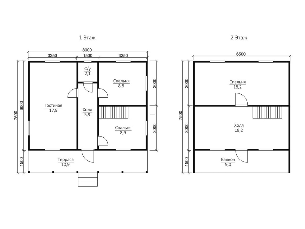
Проект №42 Дом с террасой и балконом 7,5х8

брус камерной сушки
Создайте свой план для этого проекта
и отправьте его нам на расчет в один клик.
Под ключ (с отделкой) 7,5х8 Профилированный 140х140 мм 2110600 Заказать
Под ключ (с отделкой) 7,5х8 Профилированный 190х140 мм 2270600 Заказать
Под усадку (без отделки) 7,5х8 Cруб дома 140х140 мм 1260600 Заказать
Под усадку (без отделки) 7,5х8 Cруб дома 190х140 мм 1410600 Заказать


Комплектация

Площадь застройки: м2
Длина: 7 м
Ширина: 8 м
Общая площадь: 81.75 м2
Под ключ (с отделкой) Под усадку (без отделки)
Фундамент Свайно-винтовой или ж/б сваи (рассчитываются отдельно).
Гидроизоляция фундамента Рубероид в два слоя.
Основание (обвязка) Из обрезного бруса (100х150 мм. 150х150 мм. 150х200 мм. согласно выбранному сечению бруса). Обработка антисептиком.
Количество рядов основания 2 2
Цокольное перекрытие Обрезной брус камерной сушки 100х150/50х200 мм. с шагом 600 мм. Обработка антисептиком. Обрезной брус естественной влажности 100х150/50х200 мм. с шагом 600 мм. Обработка антисептиком.
Пол черновой Обрезная доска камерной сушки 20х100 мм. Обрезная доска естественной влажности 20х100 мм.
Внешние стены Профилированный брус камерной сушки, сечением 90х140/140х140/190х140 мм. по выбранной комплектации. Два вида профиля: 
1. С двух сторон, прямой со снятой фаской. 2. Снаружи под «блок- хаус», внутри прямой.
Высота сруба: Сруб одноэтажный- 18 венцов
Сруб с мансардой- 18 венцов
Сруб в 1,5 этажа- 18 венцов, далее каркас с внешней отделкой имитацией бруса.
Сруб в 2 этажа- 37 венцов
Профилированный брус естественной влажности, сечением 90х140/140х140/190х140 мм. по выбранной комплектации. Два вида профиля: 
1. С двух сторон, прямой со снятой фаской. 2. Снаружи под «блок- хаус», внутри прямой.
Высота сруба: Сруб одноэтажный- 18 венцов
Сруб с мансардой- 18 венцов
Сруб в 1,5 этажа- 18 венцов, далее каркас с внешней отделкой имитацией бруса.
Сруб в 2 этажа- 37 венцов
Межвенцовый утеплитель Джут (льноджутовое полотно). Джут (льноджутовое полотно).
Перегородки 1-го этажа Профилированный брус камерной сушки, сечением 90х140 мм. Профилированный брус естественной влажности, сечением 90х140 мм.
Перегородки 2-го этажа Каркасные: доска камерной сушки 40х100 мм, обшитые евровагонкой хвойных пород, камерной сушки, толщиной 12,5 мм. сорт «АВ» (дома с мансардой и в 1,5 этажа). Брусовые: профилированный брус камерной сушки, сечением 90х140 мм. (дома двухэтажные). Каркасные: доска естественной влажности 40х100 мм. (дома с мансардой и в 1,5 этажа). Брусовые: профилированный брус естественной влажности, сечением 90х140 мм. (дома двухэтажные).
Сборка сруба Берёзовый нагель. Берёзовый нагель.
Соединение углов сруба «Тёплый угол» (коренной шип). «Тёплый угол» (коренной шип).
Высота от пола до потолка Сруб одноэтажный: 2,4 м. (18 венцов) Сруб с мансардой: 1-ый этаж- 2,4 м. (18 венцов)
2-ой этаж (мансарда)- 2,3 м.
Сруб в полтора и два этажа:
1-ый этаж 2,4 м ±4 см. (18 венцов)
2-ой этаж 2,4 м ±4 см. каркасные аттиковые стены (боковые) высотой 1,5 м. в полутораэтажном доме
2,4 м ±4 см (поднят брусом на 18 венцов) в двухэтажном доме.
Сруб одноэтажный: 2,5 м. (18 венцов) Сруб с мансардой: 1-ый этаж- 2,5 м. (18 венцов)
2-ой этаж (мансарда)- 2,4 м.
Сруб в полтора и два этажа:
1-ый этаж 2,5 м ±4 см. (18 венцов)
2-ой этаж 2,5 м ±4 см. каркасные аттиковые стены (боковые) высотой 1,5 м. в полутораэтажном доме
2,5 м ±4 см (поднят брусом на 18 венцов) в двухэтажном доме.
Утепление (пол, потолок, мансарда) Минеральная вата Knauf 150 мм. Отсутствует.
Пароизоляция (пол, потолок, мансарда) Ондутис R70. Отсутствует.
Пол чистовой Шпунтованная доска камерной сушки толщиной 36 мм. сорт АВ. по рейке 20х40 мм. либо шпунтованная ДСП 16 мм. по разряженной обрешётке из обрезной доски камерной сушки 20х100 мм. Отсутствует.
Потолки Евровагонка камерной сушки толщиной 12,5 мм. сорт АВ. Отсутствует.
Окна Деревянные, двойного остекления. Отсутствуют.
Двери Входная- металлическая, утеплённая (Россия). Межкомнатные- филёнчатые. Отсутствуют.
Наличники на окна и двери Наличник деревянный, строганый, камерной сушки 70-90 мм. Отсутствует.
Шиповка оконных и дверных проёмов (ройки) Да. Отсутствует.
Лестница (при наличии второго этажа) Деревянная, одно или двухмаршевая. Перила- заводские резные, балясины- заводские точеные, устанавливаются стартовые точёные столбы. Ступени 40х200 мм. Тетива лестницы- 90х140 мм. Отсутствует.
Крыша Двускатная, ломаная или вальмовая в соответствии с проектом. Двускатная, ломаная или вальмовая в соответствии с проектом.
Стропильная система Выполнена из обрезной доски камерной сушки 40х150 мм. Шаг установки стропильных ног 600 мм. Выполнена из обрезной доски естественной влажности 40х150 мм. Шаг установки стропильных ног 600 мм.
Обрешётка Выполняется из обрезной доски камерной сушки толщиной 20-22 мм. Шаг крепления обрешетки 300 мм. Контробрешётка выполняется из бруска камерной сушки 40х50 мм. Крепится по стропильным ногам (вентиляционный зазор). Выполняется из обрезной доски естественной влажности толщиной 20-22 мм. Шаг крепления обрешетки 300 мм. Контробрешётка выполняется из бруска естественной влажности 40х50 мм. Крепится по стропильным ногам (вентиляционный зазор).
Подкровельная мембрана Ондутис А100 Ондутис А100
Кровельное покрытие (на выбор) Ондулин, Черепица Ондулин. Ондулин, Черепица Ондулин.
Фронтоны (при наличии) Каркас из обрезной доски камерной сушки 40х150 мм. Обшиваются вагонкой камерной сушки толщиной 16 мм. сорт АВ по контррейке 20х40 мм. (вентиляционный зазор). Влаго-ветрозащита Ондутис А100. Монтаж вентиляционных решёток. Каркас из обрезной доски естественной влажности 40х150 мм. Обшиваются вагонкой камерной сушки толщиной 16 мм. сорт АВ по контррейке 20х40 мм. (вентиляционный зазор). Влаго-ветрозащита Ондутис А100. Монтаж вентиляционных решёток.
Свесы крыши Ширина 400 мм. Подшиваются вагонкой камерной сушки, сорт АВ. Ширина 400 мм. Подшиваются вагонкой камерной сушки, сорт АВ.
Терраса/балкон (при наличии) Устанавливаются опорные столбы из строганного бруса камерной сушки 140х140 мм. с компенсационными болтами под усадку. Устанавливаются опорные столбы из строганного бруса естественной влажности 140х140 мм. с компенсационными болтами под усадку.
Отделка потолка террасы/балкона Евровагонка камерной сушки толщиной 12,5 мм. сорт АВ. Отсутствует.
Пол террасы/балкона Шпунтованная доска камерной сушки толщиной 36 мм. сорт АВ. Отсутствует.
Ограждение террасы/балкона Перила- строганая доска. Балясины- точеные, фигурные. Либо ограждение в скандинавском стиле. Устанавливаются ступени у входа. Отсутствует.
Допуск на геометрические параметры сруба Составляет +/- 50 мм по длине с каждой стороны. Составляет +/- 50 мм по длине с каждой стороны.
Допускается стыковка бруса, вагонки и половой доски По всему периметру стен дома (если ширина и длина дома более 6,0 метров). Вагонки и доски пола в каждой отдельной комнате. По всему периметру стен дома (если ширина и длина дома более 6,0 метров).
Допуски по брусу, доске +/- 5 мм. +/- 5 мм.
В стоимость включена Доставка комплекта материала в радиусе 500 км. от г. Пестова Новгородской области и сборка дома на вашем участке. Доставка комплекта материала в радиусе 500 км. от г. Пестова Новгородской области и сборка дома на вашем участке.
Гарантия 5 лет. 2 года.
Бытовка строительная 2,0х3,0 м. каркасно-щитовая. Стоимость 23000 руб. Остаётся на участке Заказчика. Стоимость 23000 руб. Остаётся на участке Заказчика.
Туалет 1,0х1,0 м. каркасно-щитовой. Стоимость 12000 руб. Остаётся на участке Заказчика. Стоимость 12000 руб. Остаётся на участке Заказчика.
Генератор Стоимость аренды на весь срок строительства 10000 руб. ГСМ за счёт Заказчика. Стоимость аренды на весь срок строительства 10000 руб. ГСМ за счёт Заказчика.

Строительство деревянных домов может выполняться в двух видах: под усадку, когда сруб будет отстаиваться на протяжении некоторого времени и под ключ.

В период холодов лучше всего строить из зимнего леса, летом - из сухого бруса.

Наиболее подходящими для сада или дачи являются экономичные дома на винтовых сваях, на нашем сайте можно найти одноэтажные и полуторатажные дома.

Если дом будет строиться для ПМЖ (постоянного проживания), советуем теплые и надежные одноэтажные и двухэтажные дома на плитном и ленточном фундаменте.

Имеется несколько размеров профилированного бруса: 190х140 мм и 140х140 мм. Сооружения из вертикального бруса строятся из бруса 140х190 мм.

Дополнительные услуги


Проект дома из бруса с балконом и большой террасой – полутораэтажный коттедж общей площадью 81.75 кв.м., органично сочетающий в себе русский избяной и европейский стили. Четкие линии, сдержанные архитектурные решения и основной строительный материал – натуральная древесина – придают дому респектабельный вид.

Проект 42 – оптимальный вариант функционального и комфортного дома для дачи.

В планировке четко обозначены зоны: помещения общего пользования, светлые комнаты сна и отдыха, кухня. двускатная крыша придает сооружению законченный вид. В доме из профилированного бруса выбранного сечения (90х140 мм или 140х140 мм) сохраняется тепло, создаются все условия для комфортного проживания даже в холодные сезоны.

Компания предлагает проекты домов под усадку или под ключ и их возведение в Белгороде. Дом из бруса прост в монтаже, при этом его отличают надежность, безупречная эстетика и доступность.


Популярные проекты

хит продаж брус камерной сушки
Тип: с балконом
Общая площадь: 92.22
1743600
от 1660600
хит продаж брус камерной сушки
Тип: с балконом, с маленькой террасой
Общая площадь: 662
1418100
от 1350600
хит продаж брус камерной сушки
Тип: с маленькой террасой
Общая площадь: 65.92
1460100
от 1390600

Заказать или задать вопрос



Заказать или задать вопрос

Заказать звонок